返回列表
发布日期:2021-11-23 17:33:18 浏览次数:1821
力高·雍玺台丨寻梦书院,重返湖湘



▲项目实景
书院之名
最早出现于唐代,闻名天下于宋代
培养诸多文人能才、收藏天下书作典籍、传承中华文化精神
湖南自古就是教育大省,
尊师重教、崇智尚学。
除了闻名天下的岳麓书院,
在湘潭还有昭潭书院、碧泉书院
和龙潭书院三所古书院。
它们积淀着千年的文化,
带着中华文明从深厚走向宽广。
雍玺台项目位于湖南省湘潭市主城核心辐射区,坐落在湘江南岸, 东西两地块环抱滴水湖公园,簇拥林木,坐收美景。

▲示范区入口

▲项目区位图
展示中心也是未来的社区幼儿园。
远离交通、亲近湖水、毗邻公园、浑然古书院般的静谧幽隐。
“书香雅韵”是这里带给所有人的强烈场所感。
建筑设计的一开始,
从业主到建筑师的心中都被这四个字赋予了一种明确的画面感。

▲鸟瞰效果图
蔡伦造纸,白石作画;
林木森森,纸卷书开。
自然、造纸、书简……
设计从历史上“书”的由来萃取很多造型上的灵感。
林木、书画、张敛……
也从白石画作、湖湘文化中融合了很多建筑精神。
最终从“纸”、“简”、“画”、“林”、“院”、“书”、“意”
这些从地方文化提炼的意境,
铸就了建筑的形态与场所感。


▲体量生成

纸页纷纷、若合若开。
建筑屋顶类似飘落的树叶、形态自由。
不远不近,互不相望;
分合布局,错落有序,
又呈现出灵动、干净的建筑主体,
映衬在疏林美景之间。

▲设计概念


建筑共两层,布局自然、舒展飘逸。
设计力求以通透轻盈的姿态与场所相融合;
以行云流水的畅快勾勒出文化与艺术;
以湖湘文化的现代生活品味向城市展示精致与细节。
诗曰:“半亩方塘一鉴开,天光云影共徘徊”。




建筑的外表希望呈现出长卷青书的如虹气势,像古长沙郡出土的轻薄的东汉竹简,展现出的历史的厚重,缓缓展开,叙述长远。

▲设计概念



林木、生长,生机、蓬勃。
建筑师选用抽象的树木,
来丰富建筑表皮的细节,
从轻盈到厚重,再从厚重到生动。

▲设计概念
在立面的处理上,
一层采用立面通高的玻璃幕墙,
无限延伸室内外空间格局,
同时,引景入室,四季美景尽收眼底。
二层采用铝板金属,
形态的要求也对施工工艺提出了新的要求。



为了达到更轻薄的形体效果,
还大量运用简洁有序的竖向线条,
将轻盈通透的玻璃与原木色格栅搭配,
彰显建筑的挺拔感。


镂空和光影以细腻的手法增加着建筑的空间维度,
赋予观感视觉上更深层次的体验。
通过对凹度及高度两个方向进行计算,
让肌理上的变化自左而右、由浅入深。
营造了一种曲折上升的态势,
也暗喻学习和成长的过程。
▍建成效果


▲查看对比


▲查看对比


▲查看对比


▲现场施工图

自古以来,中国文人尤其注重物境的表达。
园林的营造又以意境与自然为尚,
视大自然为园林的精神。

以空灵的“水为心境”,
引入书院的广博、隐喻,
表达建筑与自然较为知性宏大的一面;
通过“物境—意境—心境”三层递进关系,
彰显当代建筑的理性与朦胧、本真与纯粹。




文化
是一种历史的积淀
是一种学习的氛围
更是一种生活的环境
它如同一个巨大的磁场
吸引着湖湘世世代代的读书人

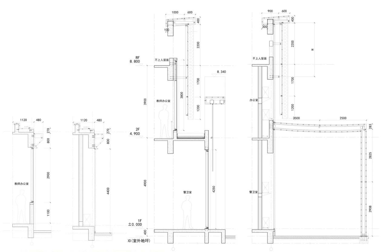
▲墙身大样



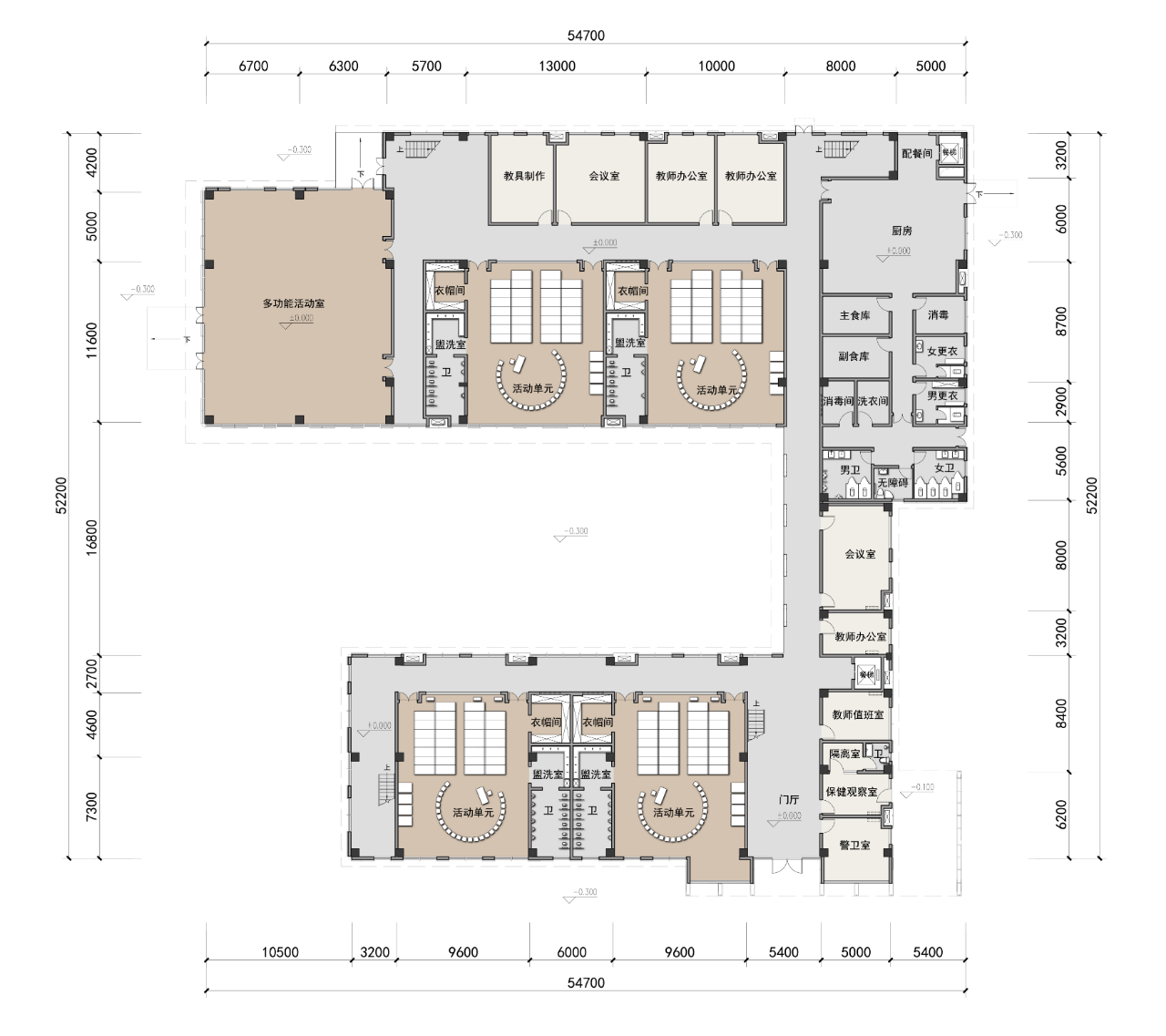
▲幼儿园平面图
工程档案 | PROJECT FILE
—
项目名称:湘潭·雍玺台
开发单位:力高集团&宁邦集团
建筑面积:示范区3200㎡,大区432300㎡
建筑设计:洲宇设计集团深圳方案总部
景观设计:笛东规划设计(北京)股份有限公司
精装设计:深圳市里约环境艺术设计有限公司
幕墙设计:福建省华荣建设集团有限公司
泛光设计:深圳市粤大明智慧科技集团有限公司
摄影单位:此间建筑摄影(建筑) 三映摄影(景观) 广州昭亮品牌策划(室内)
本网站资料版权归学会所有,如需合作请联系我们取得授权
联系电话:028-62551843
邮箱:scjzsxh0866@163.com