返回列表
发布日期:2021-11-23 14:23:00 浏览次数:2224
项目名称:彭山产业新城市民活动中心
设计单位:中国建筑西南设计研究院有限公司
项目地点:四川省眉山市彭山区
业主单位:眉山鼎兴园区建设有限公司
用地面积:20764㎡
建筑面积:10437㎡
建筑层数:地上两层,地下一层
设计/建成时间:2017.01/建成待交付

彭山产业新城市民活动中心


林盘院落,川西水韵
对场地中留存的川西林盘特征进行了抽象和提炼
用庭院分隔和串联功能;将大空间消解在院落系统中
用滨水界面布置公共空间
呼应林盘中庭院、水体与建筑的和谐关系
大气秩序,画卷漫游
城市主界面上呈现“大气秩序”的完整、秩序的城市形象
自然滨水界面相对舒展运用散点透视的漫游体验
城市和自然界面在步行尺度下有机的融合实现统一
白墙黛瓦,低檐缓廊
对传统元素墙、瓦、檐、廊进行抽象和重新演绎
塑造适应传统文化与建筑性格的空间体验与有趣互动
适应现代人的生活节奏和审美诉求
生态通风,舒适宜人
结合川西民居通风模式
借鉴传统民居利用庭院内的水体植被降温、过滤,促进通风
以建筑架空层丰富空间渗透、提高内部品质
01
[ 背景 ]
项目区位与周边关系
▽

场地现状特点
▽

项目地处眉山市彭山南部新区启动区域新城中央公园之中。
基地周边仍然保留较为传统的川西“林盘”式聚居布局,选址上水流途径、建筑上布局灵活、环境上竹木围绕、布局上小组簇团,构成了场地的独特性。
彭山产业新城市民中心项目方案设计,旨在通过对建筑各个不同层级矛盾的和谐处理,为城市塑造具有自身文化特质的高品质公共场所。
02
[ “林盘院落,川西水韵” ]
院落与林盘布局生成
▽

院落林盘鸟瞰
▽


林盘院落实景
▽


项目场地现状中保留着具有川西林盘特征的空间结构,我们也据此提出了“林盘院落,川西水韵”这一对林盘空间现代表达的愿景,在设计中对用地现状中留存的川西林盘特征进行了抽象和提炼。
设计结合市民中心未来展示与办公、公共活动并重的特点,在功能模块之间嵌入庭院空间,用庭院将各个功能模块进行分隔和串联。方案将公共职能面向城市道路,私密功能面向中央公园充分打开,充分利用北侧中央公园的滨水界面布置公共空间,将规划展厅、报告厅等大空间消解在一系列的院落系统当中;在建筑的整体布局上呼应了林盘中庭院、水体与建筑的和谐关系。
03
[ “大气秩序,画卷漫游” ]
城市界面的“大气秩序”
▽



滨水界面的“画卷漫游”
▽




“大气秩序,画卷漫游”,是项目设计中应对城市界面和自然界面的竞合,对两者的不同性格在不同的界面上分别体现大气秩序的城市形象和散点透视的漫游体验,并将二者之有机融合在一起。
市民中心作为产业新城未来的展示平台,在主要界面上需要呈现一种更加完整和秩序的形象;办公与接待等功能则更适合相对舒展的形态。设计中也同样重视南侧完整的形象界面与北侧公园界面中步行尺度下的界面进行了有机的融合,实现方案的完整统一。
04
[ “白墙黛瓦,低檐缓廊” ]
墙、瓦、檐、廊等元素的抽象与演绎
▽

建筑细部实景
▽



“白墙黛瓦,低檐缓廊”是项目设计中为传统细部元素确定的的新演绎。在建筑的细部设计上,对传统建筑中的墙、瓦、檐、廊等元素进行了抽象和重新演绎,以适应现代人的生活节奏和审美诉求。
具体而言,设计中将传统白墙演化为白色石材幕墙与内侧玻璃推拉门的组合;将小青瓦屋面抽象为深色金属屋面,天沟外侧采用铝单板屋面系统,解决直立锁边系统不易收口的问题。同时,设计方案充分利用坡屋面下的檐下空间,塑造近人尺度中的亲切感和领域感;并对庭院、入口等处的建筑灰空间相互渗透,利用石材、玻璃、金属等现代材料和使人感知传统的空间特征间,以合理的细部设计重新塑造适应建筑性格的空间体验,形成有趣的互动。
05
[ “生态通风,舒适宜人” ]
“生态通风,舒适宜人”憬愿的实施策略
▽

“生态通风,舒适宜人”是项目结合川西民居通风模式的利用建筑架空层和庭院空间组织丰富的空间渗透关系的空间设计。
为了达到这一憬愿,在庭院空间中,项目设计借鉴了传统民居利用庭院内的水体植被降温、过滤空气,促进室内通风的原理。利用建筑架空层和丰富的空间渗透关系,实现建筑内部优质的自然通风,降低建筑能耗,提高使用舒适度。
“系统整合,提升品质”是全专业的综合要求。
结合建筑本身的功能特点,结构专业针对经济性的大跨度空间设计;暖通专业针对空调选型、室内空气质量与噪声控制;给排水专业针对供水方式、雨污水排放管理;强弱电专业针对电气设备合理选型、防雷措施与建筑形象的良好结合等方面,分别作出了具有针对性的设计,系统的提升了建筑的整体品质。
06
[ 图纸 ]
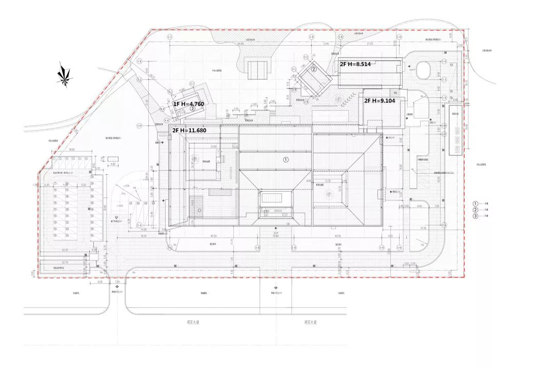
总平面图
▽

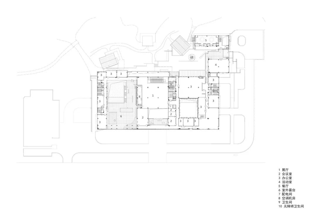
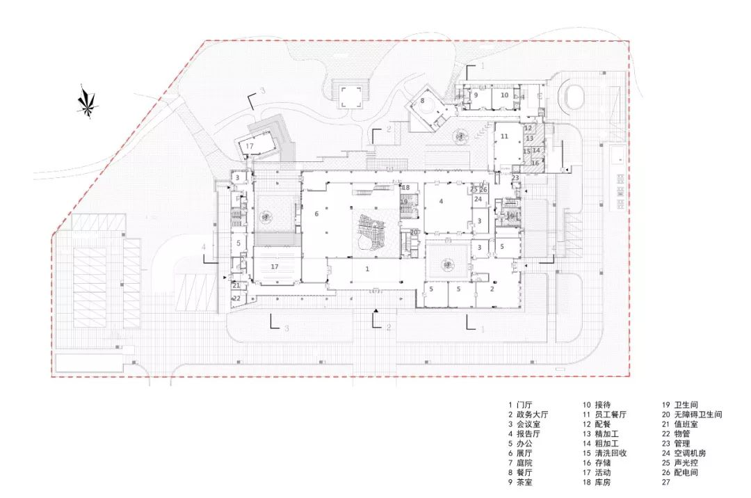
平面图
▽



剖面图
▽

立面图
▽


主持建筑师:钱方
建筑:雷冰宇 林有为 谢钦 谢秀丽
结构:陈文明 张桢琦
电气:银雪 唐杰
暖通:杨富生 梁志孟 张鹏程 李泊然
幕墙:罗建成 莫红梅
给排水:文烨 杨红兵
建筑摄影:存在建筑

版权声明
本文版权归中国建筑西南设计研究院前方工作室所有
欢迎各类媒体合作,请与我们联系取得授权
联系电话:028-62551933