返回列表
发布日期:2021-11-23 14:20:37 浏览次数:12575
项目名称:天府国际金融中心双塔
设计单位:中国建筑西南设计研究院有限公司
项目地点:四川成都高新区天府大道966号
业主: 成都金融城投资发展有限责任公司
用地面积:295271㎡(加建项目,此用地面积为总用地面积)
建筑面积:167895㎡
建筑高度:202.175m
设计开始时间:2010年6月
结构耐久年限:50年
抗震设防烈度:7度

天府国际金融中心位于成都市金融城核心区域
整体布局呈放射性花瓣散开
呈现现出简约、优雅、现代的总体风貌
项目共由9幢建筑组成
一期包含
六幢“花瓣”建筑
一幢“花蕊”建筑
二期包含
两幢超高层建筑
一幢金融营业厅

天府国际金融中心双塔
01
【因地制宜】
化解场地限制与发挥区域优势
▼
天府国际金融中心一期实景
▼


一期“花瓣”和“花蕊”对加建影响较大
避开原有地下室与管网限制后
能用于建设的用地十分紧张、比较零碎
综合限制叠合后情况及建议可加建区域
▼


通过分析
1号区域考虑加建超高层建筑
北塔公寓楼+南塔办公楼
原有管网、地下室坡道等改造量虽大
但换取容积率高
并且施工可独立成区
对园区内已有建筑的功能运行影响较少
2号区域加建功能必需的2层金融营业厅
对原有建筑群空间形态破坏不大
加建后 - 效果图
▼

加建后 - 实景图
▼



02
【和而不同】
延续传承和突破创新
▼
超高层双塔
在总平面上沿城市东西主轴线对称摆放
双塔建筑格局延续园区建筑的向心特征
双塔夹角既利于减小相互之间对视
符合园区原景观设计原则
保证园区内外视线通透
建筑的向心性
▼

美是有内在数学逻辑关系的
从单幢建筑的各层平面
到各幢建筑之间的剖面构成
都有科学而严密的数学逻辑关系
因为理性而呈现异乎寻常的惊艳
建筑造型的数学逻辑关系
▼

外部界面采用双层表皮
金属外网采用极具中国特色的冰裂纹图案
这种图案与原有建筑表皮的图案一样源于自然界
做到由外看及由内看均有很好的效果
同时
外表皮具有一定遮阳效果
内表皮为带形窗结合部分实墙
有利于节能,与原建筑和而不同、相得益彰
自然界的 - 中国传统的
▼

连续的网格由12个不同的单元板块变换组合构成
▼

已有建筑往外看 | 扩建双塔往外看
▼

细节处理
▼


建成后 - 实景图
▼



03
【BIM协同】
前瞻性的设计
▼
参数化建模确定幕墙平面分隔
▼

参数化建模研究柱网与幕墙关系
▼

参数化建模进行幕墙板块划分
▼

金属外网板块划分
▼

BIM建模研究
▼

建成后 - 实景图
▼


04
【技术图纸】
▼
地下负一层平面图
▼

办公区一层平面图
▼

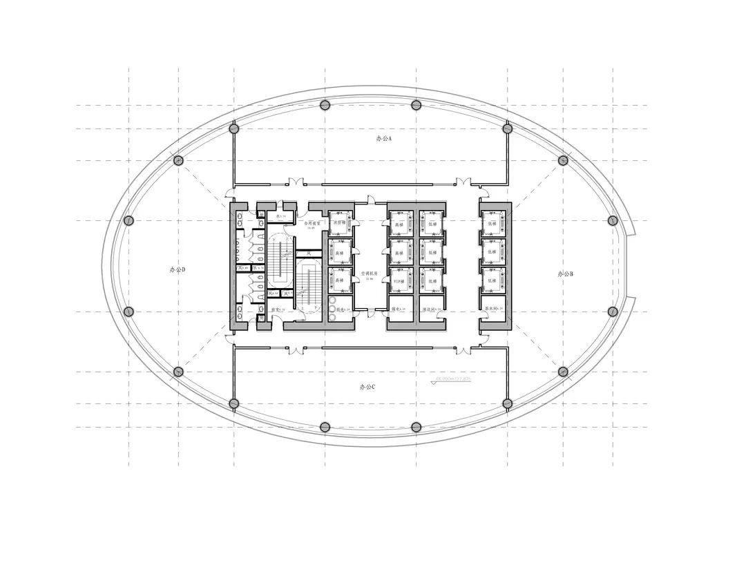
办公区低区平面图
▼

办公区中区平面图
▼

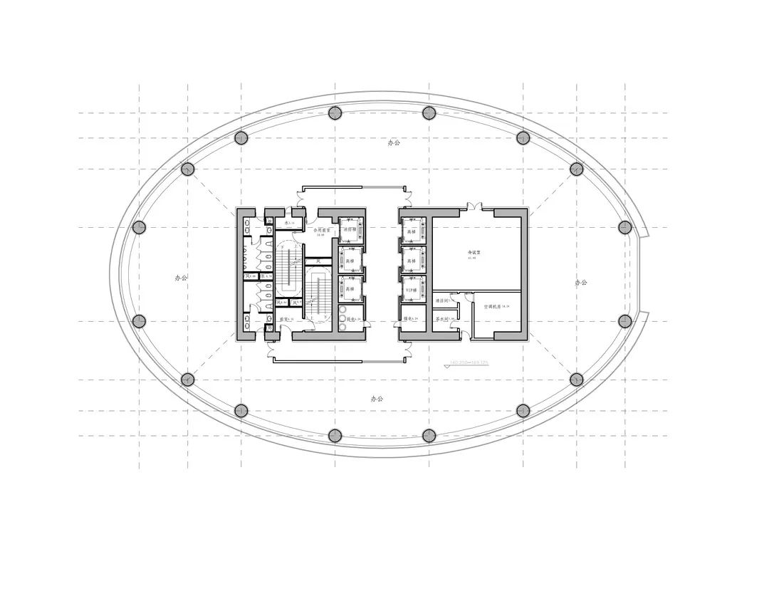
办公区高区平面图
▼

公寓区一层平面图
▼

公寓区7-16,18-37层平面图
▼

公寓区39-52层平面图
▼

主持建筑师:钱方
项目组:刘艺 张宗腾 黄怀海 周杨 彭彦 张嘉琦
结构:冯远 伍庶 曹莉 蒋朝志 张蜀泸
电气:徐建兵 银瑞鸿 吴维全 郑宇 关怀
暖通:戎向阳 路越
给排水:李波 靳雨欣
幕墙:董彪 殷兵利 李铭
建筑物理:李慧群
建筑经济:张廷学

版权声明
本文版权归中国建筑西南设计研究院前方工作室所有
欢迎各类媒体合作,请与我们联系取得授权
联系电话:028-62551933