返回列表
发布日期:2021-11-23 14:15:14 浏览次数:4850
项目名称:若尔盖暖巢一号—若尔盖阿西乡下热尔小学学生宿舍
设计单位:中国建筑西南设计研究院有限公司
项目地点:若尔盖县阿西乡
业主单位:若尔盖县教育局
用地面积:915㎡
建筑面积:1255㎡
建筑层数:四层
设计/完成时间:2014.04/2015.12



高寒高海拔!
已经建成的“暖巢一号”位于若尔盖县夏热尔村小学内
面对高寒高海拔、匮乏的资源、建造传统与工艺缺失的条件
和拮据的预算以及保护三江源头脆弱的生态环境的要求
零碳采暖集热墙!
创造性的集热墙设计
仅全被动式太阳能采暖而无其他辅助采暖
是真正的免维护的零碳采暖建筑!
室内外温差23℃以上!
在冬季最严寒的时期
室内最低温度均在10℃以上,室内外温差可达23℃以上
给孩子们一个温暖、安全、舒适的“家”!
若尔盖暖巢一号
01
[ 挑战极限与梦想诉求 ]
高寒高原 - 三江源头若尔盖
▽



面对高寒高海拔的环境、匮乏的资源、缺失的传统与工艺、拮据的预算、以及三江源头脆弱的环境与生态。我们希望通过被动式得热设计把最冷月室内最低温度提高到12℃(国家卫生标准),为孩子们打造一个安全、舒适、温暖的“家”。
暖巢项目位于四川省阿坝藏羌族自治州若尔盖县下热尔村。地处青藏高原东北边缘严寒气候区,海拔约3500m,常年平均气温1.1℃,最低温度-20℃以下,为高寒高海拔地,不单对施工,更极度并长期地持续考验在此坐落的建筑。
又由于地处高原,建造资源极度匮乏,甚至大多数建材都需从成都运至当地;且当地并无较好的建造传统,工艺与房屋质量较低,极大地增加了设计与施工的整体难度。
同时,基底也地处三江源头,环境脆弱,位置敏感,方案需充分评估建造及使用过程对自然环境产生的压力。
最后,作为慈善项目,资金来源为洪刚先生通过中华扶贫基金会捐助的人民币200万元,结合当地政府拨款,造价约和每平方米建筑面积2354元,折合平原地区造价1300左右。在如此低廉造价下要如何实现诉求也是一个重大问题。
02
[ 零碳采暖 ]
适应于全被动式太阳能的建筑采暖立面
▽

适应于全被动式太阳能的建筑保温立面
▽

项目挑战与策略决策
▽

项目面临高原高寒高海拔、气候严酷、资源匮乏、环境脆弱、经费有限的基本条件。我们却在计划着什么?又做到了什么?
通过综合整理与决策,项目决定针对当地日照比较强烈、冬季拥有良好的太阳辐射、而夏季不需降温措施、属于利用太阳能的适宜区并可以满足建筑采暖的基本能源诉求的特点,选取了投资低、维护简单、性价比高的全被动式太阳能的技术路线,实现了采暖功能的零碳排放,实测最冷月份主要房间室内平均温度在12.5-14摄氏度之间,内外温差达23℃以上,整栋建筑平均室内温度可达10℃!
鉴于有限的资金和昂贵的运输费用,我们尽量采用当地可以提供的,拥有较为理想的导热系数和蓄热系数的页岩实心砖。
基于对造价的控制,我们通过合理分配,采用较为便宜的砖混结构体系形成重质墙体,提供经济、抗震和蓄热性能;将节省的资金用于外保温构造,采用240mm砖墙,80mm聚氨酯喷涂与120mm砖墙保护饰面作为外墙外保温,来低价地实现目标诉求。
03
[ BIM前置教导的理性决策 ]
3.1 “向南”
EnergyPlus辅助总图与布局的确认与修改
▽


“向南”是我们在BIM辅助下确定的最有利于采暖的总平面图布局的认识。
为了实现采暖功能的零碳排放,项目采用了前置BIM技术综合模拟下的设计决策模式。在设计的全过程中,BIM模型与性能化模拟同步进行,交替优化。
项目通过EnergyPlus辅助总图与平面布局,我们将新宿舍布局调整为南北向来获得更多日照,并通过比较选择了南偏东15度布局。
3.2 “包裹”
EnergyPlus分析不同建筑内部布局模式
▽

作为采暖缓冲区的屋顶活动室与北侧走道
▽

“包裹”是模拟得出的最有利于建筑保温的内部布局模式。
项目又通过EnergyPlus综合各组模拟数据得出,在高海拔高寒地区,满足建筑基本使用功能情况下,有效的设置温度缓冲区可以明显的改善建筑室内的热舒适度。
因此项目根据针对性模拟结果,在设计中将屋顶活动室和北侧走道设置为采暖缓冲区,三面包裹住宿舍空间,减少主要房间散热,满足日间使用的同时,明显的改善主要使用空间室内的热舒适度。
3.3 “差异”
窗墙比测算结果指导立面设计原则
▽

最大限度的加大南侧窗洞提升采光面,增加室内的得热
▽


北侧洞口尽量缩小,减少热量散失可能
▽


“差异”是全被动太阳能采暖模式所必然需求的建筑的南北两个立面截然不同的立面策略。
项目通过多种软件模拟分析支持窗墙比优化,获得指导和支持窗洞位置大小的各类数据,并获得了南侧开窗面积越大,则房间白天蓄热越多,夜晚温度就越高的结论。
据此指导设计在结构允许的范围内,在南侧尽量开最大的窗洞,单元体窗墙比最大化 达到6:4,单元窗尺寸为2300mmx2550mm;
北侧洞口则尽量控制和缩小,减少热量散失可能,最大洞口仅有只存在于楼梯外侧的1500mmX1500mm窗,其余皆为大小仅有600mmX600mm甚至300mmX300mm的小窗洞口。
3.4 “避让”
FLUNET辅助门洞位置设计
▽

均设有门斗的出入口与侧面进入的北侧入口
▽


幕墙形式的门窗增强密闭与保温
▽

“避让”是为了减少门窗开口在开启时的热对流散热,实现开启时零风压而确立的门窗洞口设置与选型的指导思想。
项目结合FLUNET计算门洞位置时获得的结果,理性的选择建筑主要出入口位置,并合理设计各个出入口在冬季的管理模式,从而尽量减少冬季冷风涌入室内。
宿舍各个方向主要出入口均设有门斗,并在北侧入口采用侧面进入加L形门斗方式,以实现开启时的零风压或者近乎零风压,尽量避免冬季冷风进入室内或室内热空气逃散。
门窗也采用幕墙形式,最大限度保证建筑气密性。
04
[ 可变热阻 ]
南侧集热墙工作原理
▽


由钢化单层白玻璃幕墙、空气夹层,与深色保温墙体构成的集热墙
▽

项目在南侧开创性的设计并使用了集热墙系统,有效提高了集热效率。集热墙由钢化单层白玻璃幕墙、空气夹层,与深色保温墙体构成,并在窗户内侧设有厚棉窗帘,防止夜晚室内热量散失。
集热墙系统利用阳光照射到外面有玻璃罩的深色蓄热墙体上,加热透明玻璃和厚墙外表面之间的夹层空气,通过热压作用使空气流入室内向室内供热,同时墙体本身直接通过热传导向室内放热并储存部分能量,夜间墙体储存的能量释放到室内。
我们还在建筑外围设置重质墙体,800mm厚聚氨酯喷涂保温层,以及棉制保温窗帘,阻挡热量的散失。在采用该被动式构造的情况下,典型房间在冬季(11月4号)室内温度基本可达12摄氏度,满足室内温度的健康标准。
05
[ 人文关怀下的设计 ]
5.1 循环与记忆
基于人文关怀与可持续性的旧砖瓦回收与循环使用
▽

南北两侧旧砖瓦铺就的活动场地
▽

我们重视设计中的人文关怀,也关注可持续性发展、场所记忆保留与经济成本节约等多重考虑。我们对旧砖瓦进行了回收循环使用,将拆除的建筑材料整理并用于场地景观设计,给孩子们修缮了大量活动场地。我们在建筑南北侧各设置的一个可供学生活动的场地中,南侧场地便是利用拆除建筑的旧砖瓦铺设而成,并结合场地高差营造了一些活跃的空间体验。一方面,我们让旧材料在新的场地留下了痕迹,保留记忆,获得新生,另一方面也节约了建造成本,缓解材料匮乏的问题,更环保低碳。
5.2 立体的旱厕
条件针对性的立体旱厕设计
▽

高寒地区冬季通常无供水,考虑到该地区冬季严寒的天气,夜晚学生入厕不便。我们特意设计并采用了特殊的立体旱厕,冬季最冷月份也可正常使用,改善学生的生活条件。同时预留水系统管道位置,为后期的加装保留可能。旱厕化粪池设置为次冷区域,做保温处理,保证在冬季的正常使用。
5.3 地域“邦典”的色彩
邦典元素与色彩提取
▽

南侧集热墙立面细节设计运用的邦典元素
▽

缤纷色彩在室内外的运用
▽

我们从藏族特色 - “邦典”中提取出了鲜艳又丰富的色彩元素并加以运用,用来营造温暖舒适的地域化的关怀之感。邦典是藏族妇女的藏装上的一种特殊标志,是一种常被系在腰间做装饰、五颜六色、细横线条的氆氇(藏袍原料),渐渐成了藏式围裙的代名词。南立面的集热墙便部分采用了邦典这种民族元素作为装饰。
北侧楼梯的采光窗色彩丰富,几何形式跳跃,改变了单走廊的封闭空间模式,给孩子们提供多层次的空间体验与趣味。北立面错落的洞口从不同角度将光线洒入室内,显得柔和而温暖。整体建筑色彩在白色中点缀藏族传统的红白蓝绿黄,体现当地的民族性。
06
[ 不惧跟踪测试始终强力却最低造价的杰作 ]
室内温度曲线与室外温度曲线对比与跟踪测试数据
▽


最低造价控制
▽

项目在限额设计下进行全过程成本控制。由于若尔盖地处高原,建造资源匮乏,大多数建材需从成都运输至当地,因此建设成本本来极高。但我们通过各种有效措施,最终造价只有2354元/㎡,考虑到当地的人工与材料价差,相当于成都1300元/㎡的建设标准!
项目完工团队及多个高校还在2015年和2017年进行了跟踪测试。测试结果显示在最冷月份,主要房间的室内平均温度在12.5-14摄氏度之间,室内外温差在23摄氏度以上,室内温度全天平均温差1℃左右,最大温差3摄氏度。
并且集热窗阴天情况下依然能有效获取天空散射辐射提高房间集热量,实现温升,得到国际国内相关专家高度评价;现场实测数据达成设计温度目标!
07
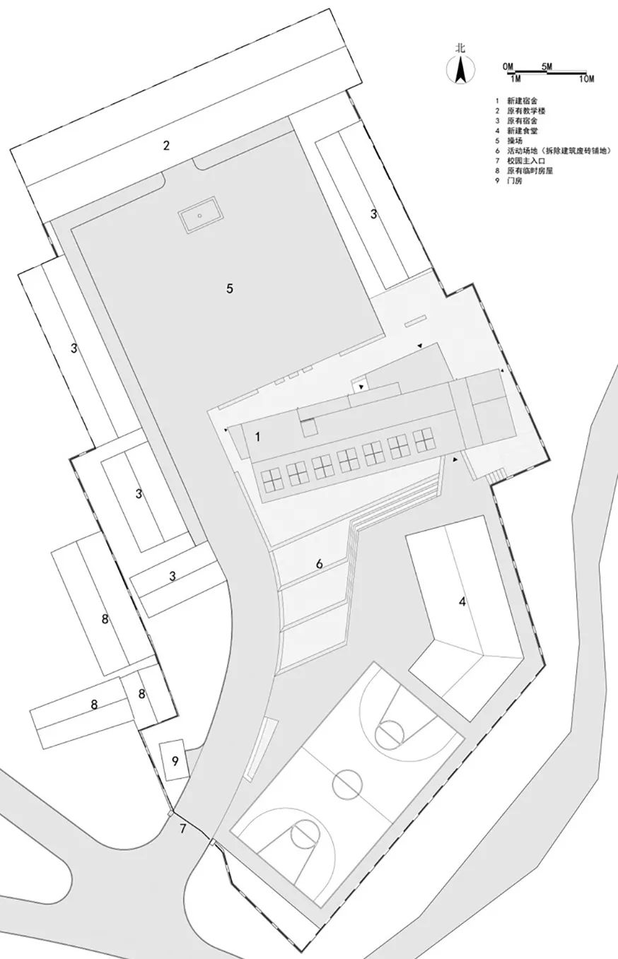
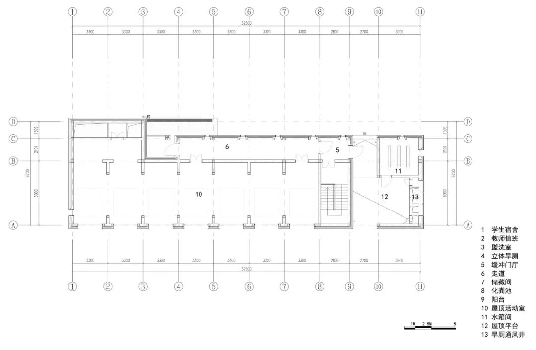
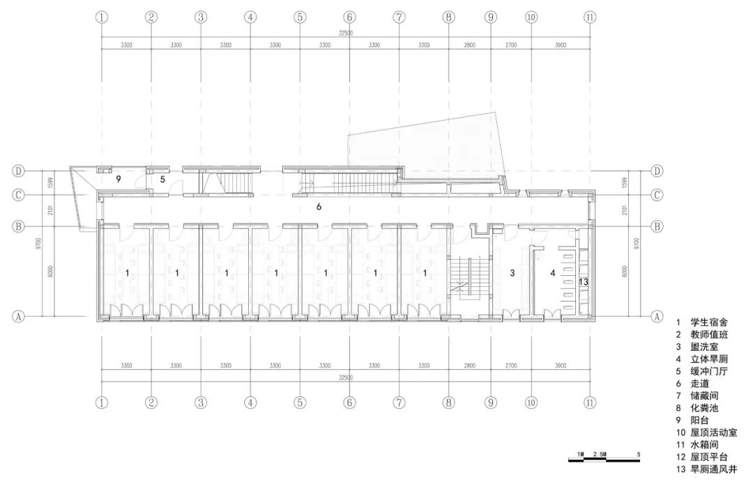
[ 技术图纸 ]
总平面图
▽

各层平面图
▽





立面、剖面图
▽




主持建筑师:钱方
绿色建筑设计总监:戎向阳
建筑:郭佳 闻金石 雷冰宇 谢秀丽
结构:毕琼 雷雨
电气:周莹
给排水:郭伟锋
幕墙:殷兵利 封宇
建筑节能:高庆龙 钟辉智
建筑经济:王莉苹
项目经理:邱天
施工单位:陕西鑫盛建筑安装工程有限责任公司
建筑摄影:存在建筑
版权声明

本文版权归中国建筑西南设计研究院前方工作室所有
欢迎各类媒体合作,请与我们联系取得授权
联系电话:028-62551933